Spațiu comercial pentru investii.
Details
- Statut:
Overview
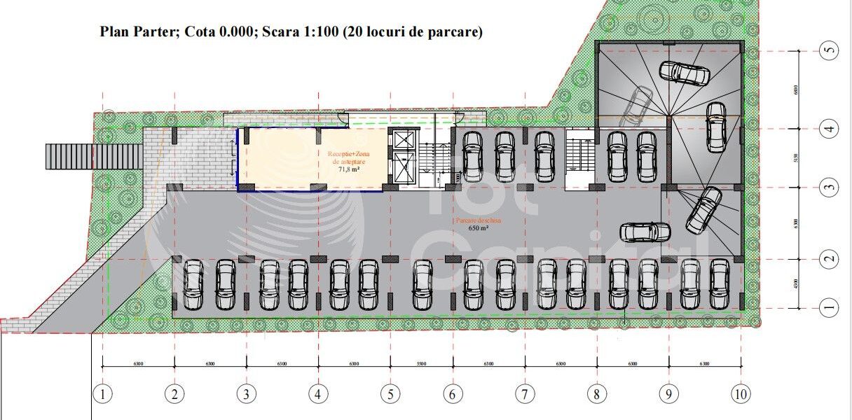
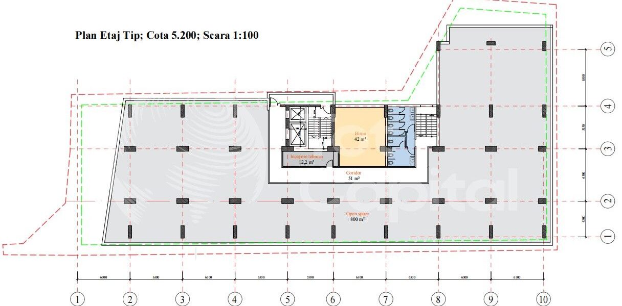
Spre vânzare spațiu comercial pentru investitori, clădire moderna de oficii, oferta este limitata in m2.
Locație str. I Creangă zonă centrala cu acces comod, zona cu infrastructura dezvoltată, centre comerciale si oficii ca Kentford Business Center , Inamstro Infinity Tower, Cedacri International, BMW center.
Viabil tranzacție în rate, su plata integrala.
Preț: confidențial
Dare exploatare 2027 semestru 2.
*Compania ”TotCapital”vă poate acorda un suport profesional în următoarele direcții:
Servicii de intermediere, mediere/negocieri și consultare imobiliară;
Servicii juridice: contracte de toate tipurile, dosare civile ;
Servicii cadastrale: proiectări, divizări, schimbare destinați și altele;
Asistenta bancară: credite ipotecare;
Asigurări imobiliare;
Învestiți Imobiliare;
Servicii în construcție, pregătire acte, proiecte, certificate, autorizați, construcți case/blocuri locative, reparați, exploatare, alte lucrări;
Va așteptăm cu drag la oficiu nostru, mun. Chișinău, sec centru, str Vasile Alecsandri 95;









